Mill work refers to custom-designed, precision-engineered interior and architectural woodwork elements that enhance both the functionality and aesthetics of a space. This includes cabinetry, wardrobes, kitchen units, wall panels, reception counters, doors, windows, shelving systems, display units, furniture, and decorative wood features used in residential, commercial, hospitality, healthcare, and industrial projects.

Mill Work Drafting Services involve the creation of highly detailed technical drawings and shop drawings that translate design intent into fabrication-ready documentation. These drawings define exact dimensions, joinery details, materials, finishes, hardware specifications, tolerances, and installation guidelines. Accurate mill work drafting is critical to avoid fabrication errors, reduce material wastage, ensure smooth installation, and maintain design quality.
About Insight Design Consultant

Insight Design Consultant is a leading engineering and design consultancy specializing in high-precision drafting, modeling, and detailing services. We are a trusted Mill Work Drafting Services provider across India and overseas, supporting architects, interior designers, contractors, and millwork manufacturers with reliable and constructible drawing solutions.

With a skilled team of CAD drafters, 3D modelers, and design coordinators, Insight Design Consultant delivers industry-compliant millwork drawings that meet international standards. Our experience spans residential, commercial, retail, hospitality, healthcare, corporate offices, and large-scale interior fit-out projects. We combine technical expertise, attention to detail, and global project exposure to deliver consistent quality and timely outputs.

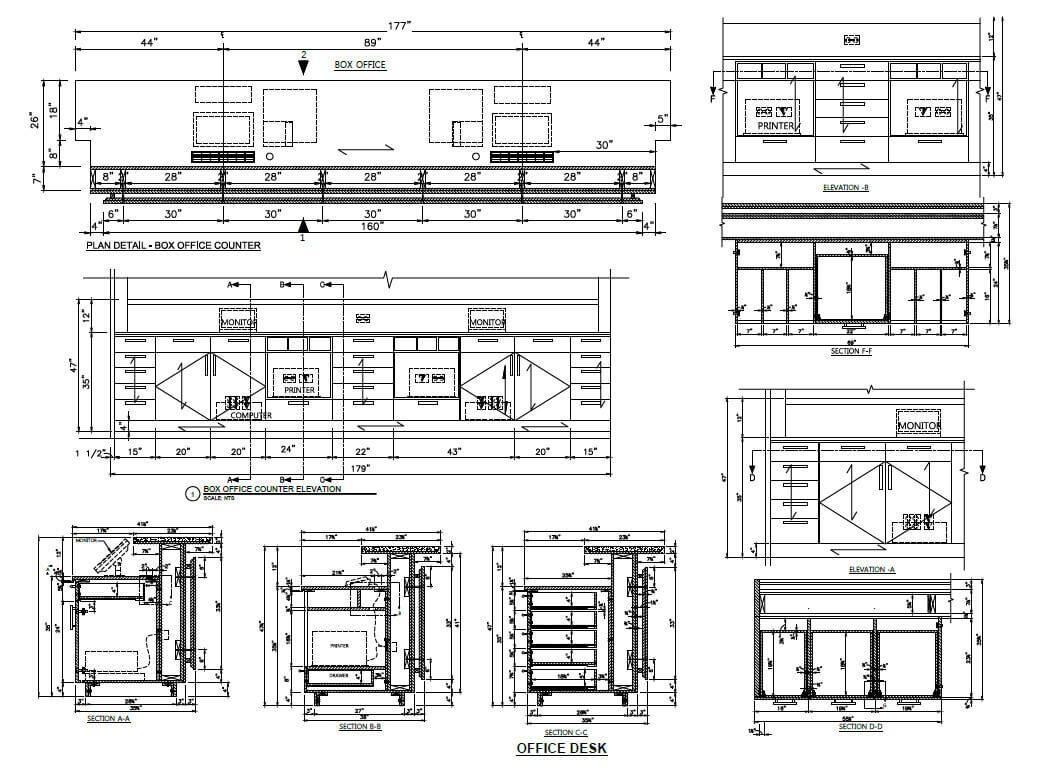
Our Mill Work Drafting Services Include:
  • Detailed millwork shop drawings for fabrication and installation
  • Cabinetry, wardrobes, kitchens, counters, and custom furniture drafting.
  • Architectural woodwork detailing for walls, ceilings, panels, and partitions
  • 2D CAD drawings with complete dimensions and annotations
  • 3D millwork modeling and visualization for design clarity
  • Material, finish, and hardware schedules
  • Cut lists and assembly details for manufacturing
  • Coordination drawings with architectural, structural, and MEP services
Delivering excellence to joinery manufacturers
High-end residential buildings
High-end residential buildings
Offices and retail shops
Offices and retail shops

Commercial malls and designer shops
Commercial malls and designer shops
Restaurants, bars, and hotels
Restaurants, bars, and hotels

Colleges, universities, and libraries
Colleges, universities, and libraries
Government buildings
Government buildings

Hospitals and laboratories
Hospitals and laboratories

Our Works


Our Work Partners

insight_design_mechanical-design-and-drafting

SOLID WORKS

insight_design_mechanical-design-and-drafting

CREO

insight_design_mechanical-design-and-drafting

MASTER CAM

insight_design_mechanical-design-and-drafting

UNIGRAPHICS

insight_design_mechanical-design-and-drafting

AUTO CAD

insight_design_mechanical-design-and-drafting

ANSYS

Best Mill Work Drafting Services in India, Top Mill Work Drafting Services in India, Mill Work Drafting Experts in India, Professional Mill Work Drafting Services in India, Mill Work Drafting Services in Andhra Pradesh, Mill Work Drafting Services in Arunachal Pradesh, Mill Work Drafting Services in Assam, Mill Work Drafting Services in Bihar, Mill Work Drafting Services in Chhattisgarh, Mill Work Drafting Services in Goa, Mill Work Drafting Services in Gujarat, Mill Work Drafting Services in Haryana, Mill Work Drafting Services in Himachal Pradesh, Mill Work Drafting Services in Jharkhand, Mill Work Drafting Services in Karnataka, Mill Work Drafting Services in Kerala, Mill Work Drafting Services in Madhya Pradesh, Mill Work Drafting Services in Maharashtra, Mill Work Drafting Services in Odisha, Mill Work Drafting Services in Punjab, Mill Work Drafting Services in Rajasthan, Mill Work Drafting Services in Tamil Nadu, Mill Work Drafting Services in Telangana, Mill Work Drafting Services in Uttar Pradesh, Mill Work Drafting Services in Uttarakhand, Mill Work Drafting Services in West Bengal, Mill Work Drafting Services in Delhi NCR, Mill Work Drafting Services in Chandigarh, Mill Work Drafting Services in Mumbai, Mill Work Drafting Services in Pune, Mill Work Drafting Services in Nagpur, Mill Work Drafting Services in Bengaluru, Mill Work Drafting Services in Chennai, Mill Work Drafting Services in Hyderabad, Mill Work Drafting Services in Kolkata, Mill Work Drafting Services in Ahmedabad, Mill Work Drafting Services in Surat, Mill Work Drafting Services in Jaipur, Mill Work Drafting Services in Indore, Mill Work Drafting Services in Bhopal, Mill Work Drafting Services in Patna, Mill Work Drafting Services in Ranchi, Mill Work Drafting Services in Thane District, Mill Work Drafting Services in Pune District, Mill Work Drafting Services in Nashik District, Mill Work Drafting Services in East Singhbhum District, Mill Work Drafting Services in West Singhbhum District, Mill Work Drafting Services in Gurugram District, Mill Work Drafting Services in Noida District, Mill Work Drafting Services in Faridabad District